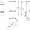
Jydepejsen Elegance Classic
De Jydepejsen Elegance Classic is uniek van ontwerp en is in het zwart en grijs verkrijgbaar. Met deze sfeervolle houtkachel haalt u de warmte in huis. Door het brede panoramische glas heeft u een prachtig zicht op het vlammenspel. Als extra optie kunt u kiezen voor een 360 ° graden draaibaar onzichtbaar plateau waardoor u nog meer kunt genieten van het houtvuur, overal waar u zit. Door het vermogen van 8 kW is een gemiddelde woonkamer binnen korte tijd aangenaam warm van temperatuur. De Elegance is vrijstaand en als wandmodel verkrijgbaar.
Product downloads







