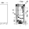
Thermorossi Mood Plus Pelletkachel
Deze prachtige designpelletkachel van Thermorossi mag er zeker zijn in uw woonvertrek. Het vierkante design geeft een mooie ruimtelijke indruk en stoot haar warmte mooi af. Dankzij de grote pelletopslag kunt u met weinig moeite erg lang genieten!
Product downloads







