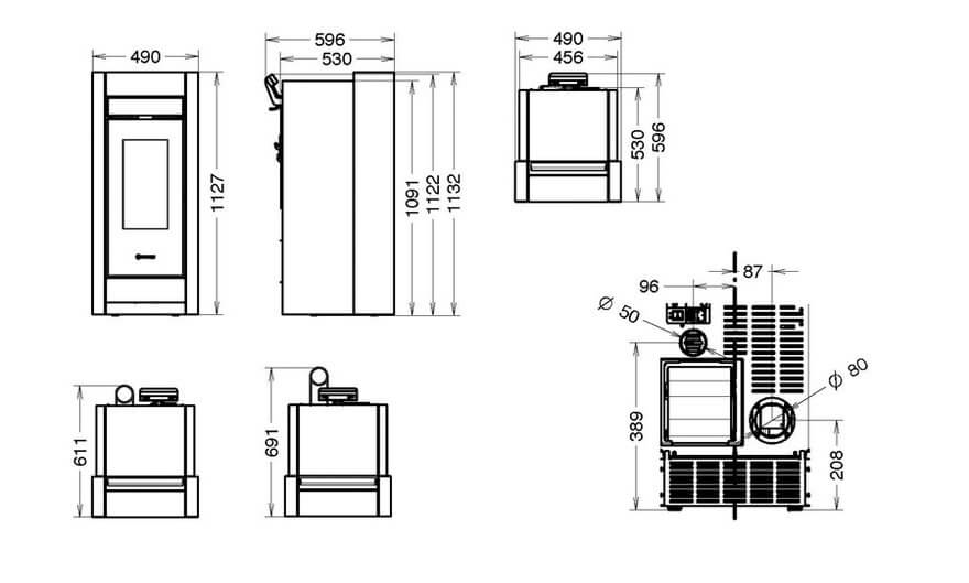
Thermorossi Essenza Silent stone pelletkachel
De Thermorossi Essenza Silent stone pelletkachel is een italiaanse pelletkachel die uw ruimtes tot maximaal 324m3 verwarmt. En is voorzien van een pellet reservoir die een capaciteit heeft van 19 kilo. Dit reservoir is makkelijk bij te vullen door een schuilfpaneel van zwart glas aan de bovenkant
Product downloads





