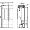
Thermorossi Bellavista R2 Silent pelletkachel
De Thermorossi Bellavista R2 Silent is een kwalitatief goede Italiaanse pelletkachel die uw ruimte met gemak warm houdt. En is voorzien van een pellet reservoir waar maximaal 25 kilo in kan. Omdat de kachel slechts 0,9 kilo pellets per uur verbruikt, kan de kachel met een vol reservoir 28 uur branden.
Innoveren is een lastige handeling makkelijker maken. Comfort is het verbeteren van de levenskwaliteit thuis. Veiligheid is zorgen voor het milieu en degenen die onze producten gebruiken. Design is het bestuderen van vorm en technische oplossingen zodat wij zeker weten dat we altijd 1 stap voorlopen. Onderzoek brengt al deze samen in 1 uniek project. Ontworpen vanuit een nieuw perspectief.
Product downloads





