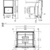
Spartherm Linear Tunnel 67×51 (vaste greep)
Met deze Linear Tunnel 67×51 1-zijdige liftdeur (voorheen de Varia FDh-51-4S) doorkijkhaard kan het vuur vanuit twee verschillende ruimtes worden bekeken. U kunt deze haard bijvoorbeeld gebruiken als een roomdivider. De haard van Spartherm heeft aan de onderzijde een rand met een handvat.
Achterwand opties
De haard wordt standaard geleverd met een witte chamotte achterwand, maar u kunt ook kiezen voor een chamotte achterwand in het donkergrijs. Het voordeel van de donkergrijze chamotte achterwand is dat de haard strakker en moderner oogt. Daarnaast wordt het vlammenspel opvallender. Het mooiste van dit alles is dat de chamotte achterwand zonder meerprijs bij de kachel gekozen kan worden.
Unieke Spartherm haarden
Wat onderscheidt een Spartherm inbouwhaard van de rest van de inbouwhaarden? Voor u een aantal punten op een rij:
- Dubbele katrollen (liftdeur) in plaats van een enkele.
- Ingebouwde bypass waardoor ook bij bijvullen er geen rook naar buiten komt.
Product downloads







