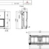
Spartherm Linear Front 100×70 (vaste greep)
De Spartherm Linear Front 100×70 (voorheen de Varia 1V-100h) valt op door zijn ruime en brede vuurzicht. Daarnaast kunt u door de ruime brandkamer ook grotere stukken hout stoken.
De Linear Front 100×70 is voorzien van een liftdeur. Spartherm staat bekend om zijn doordachte en hoogwaardige liftdeuren. Door dit unieke systeem is de haard eenvoudig te openen en is de binnenzijde zonder problemen schoon te maken.
De haard heeft geen zichtbare lijst. Hiermee wordt het zicht op het vuur minimaal verstoord. Optioneel kan ervoor gekozen worden om de haard uit te voeren met een 4-zijdig massief kader. Standaard wordt de haard voorzien van een witte chamotte bekleding.
Unieke Spartherm haarden
Wat onderscheidt een Spartherm inbouwhaard van andere inbouwhaarden? Een aantal punten voor u op een rij:
- Dubbele katrollen (liftdeur) in plaats van een enkele.
- Ingebouwde bypass waardoor ook bij bijvullen er geen rook naar buiten komt.
Product downloads





