Olsberg Osorno S
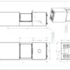
Individualiteit is het sleutelwoord. Kleiner van formaat dan zijn “grote” broer OSORNO, maar groots in veelzijdigheid – zo presenteert de OSORNO S van Olsberg zich. Dankzij het compacte ontwerp biedt de OSORNO S u een breed scala aan mogelijkheden om uw persoonlijke droomhaard samen te stellen. Kies uit verschillende bekledingen zoals staal en natuursteen. Gebruik de PowerBloc! (optioneel) de mogelijkheid om de behaaglijke warmte te voelen lang nadat het vuur is gedoofd. Waar je ook zit in de kamer: de grote 3-zijdige glasplaat van de OSORNO S geeft je altijd zicht op het laaiende open vuur. En om het echt gezellig te maken, kun je ook direct een bankje of houten opbergvakken aan de kachel bevestigen.
Product downloads







