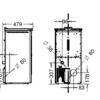
Thermorossi Mon Amour pelletkachel
Uw huis verwarmen en tegelijkertijd geld besparen, betekent niet dat u kwaliteit moet opgeven. URBAN is de mooie en functionele oplossing met de juiste verhouding kwaliteit-prijs. Een pelletkachel die alle beurzen past!
Product downloads







